Australia

# Sold Auction Guide | $640,000

5/26 Burlington Road, Homebush, NSW 2140

# Location

Description

Ultra Convenient Location in Popular Demand Set in a small boutique block in a prime location, this double brick apartment offers a quiet ultra convenient lifestyle opportunity.

Ideal for couples, investors or first home buyers. It is footsteps to Homebush's village shops, eateries, local schools and train station.

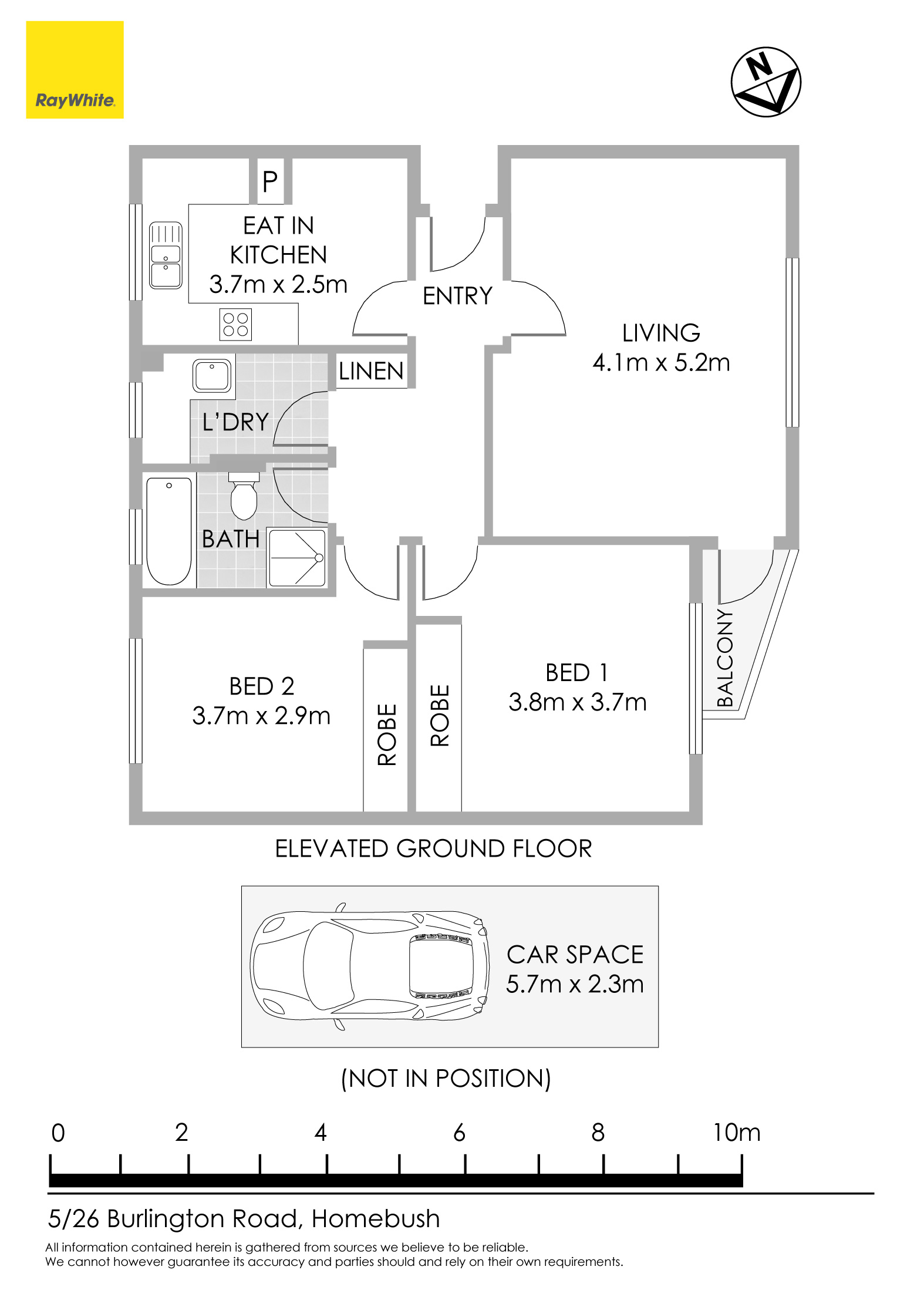
Well-presented spacious layout with 2 bedrooms, eat in kitchen, internal laundry and an open living area designed to maximise space and enhance light. A full bathroom, balcony and car space.

View More #

Floor Plans

Location

  • Contact the agency

    To request an inspection

  • # Call # Email

Raimondo Campione

Agent Name

# Report Listing

Looking for a property?

  • Top listings
  • Investment
  • Development
  • Personal home
  • Price reports
  • Suburb reports

Do you own a property?

  • Place a free listing
  • Services for private advertisers
  • Guide to selling your home
  • Insurance
  • Improve the photos of your listing
  • Value your property for free

Are you a real estate proffesional?

  • Publish your agencies properties
  • Already a client? Log into your account
  • Advertising on Australian Real Estate
  • Australian Real Estate data technology for property insights
  • Real Estate courses